






























































Get additional information including price lists and floor plans.
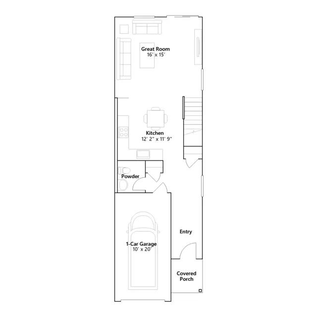
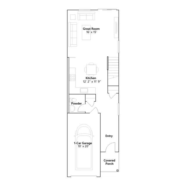
This new two-story paired home is host to an inviting open-concept layout on the first floor, blending a modern kitchen and comfortable Great Room to maximize interior space. Two bedrooms share the second floor with a luxurious owners suite featuring a full bathroom and walk-in closet.
Stay informed with Livabl updates on new community details and available inventory.