hero-image-0
Marquis Towns at Old Harwood
Sold
Sold
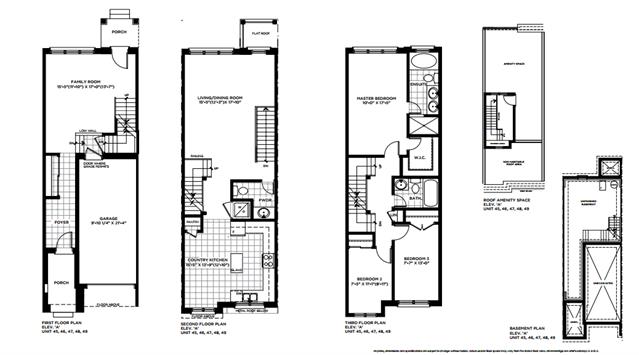
3
2
1
2,051
Topaz Lot 50 details
unit-banner-image
unit-banner-image
unit-banner-image
Topaz Lot 50 is now sold.
Check out available nearby townhomes below.