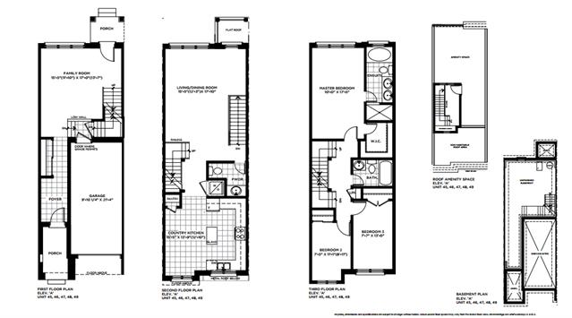
Mayfield Series - End Corner Unit Townhome (BSMT INCL.)
Manors on Mayfield
Pringle Creek, Whitby
Estate Series - End Corner Unit Townhome
Mayfield Series - Interior Townhome (BSMT INCL.)
Estate Series - Interior Townhome
Mayfield Series - End Corner Unit Townhome
Heritage Series - Interior Townhome
Mayfield Series - Interior Townhome
Heritage Series - End Corner Unit Townhome