The Cessna (TH3) - Elev. 1C
New Towns in Whitby Meadows
Rural Whitby, Whitby
The Antares - MOD (TH1-MOD) - Elev. 1
THE BURROWS (TH2) - Elev. 2C
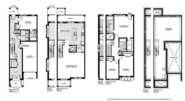
The Antares (TH1) - Elev. 1
THE BURROWS - MOD (TH2-MOD) - Elev. 2C
The Antares (TH1) - Elev. 2
THE BURROWS (TH2) - Elev. 1C
The Coral
Seaton Greens
Rural Pickering, Pickering