hero-image-0
Waterscape at Cooper's Crossin...
Sold
Sold
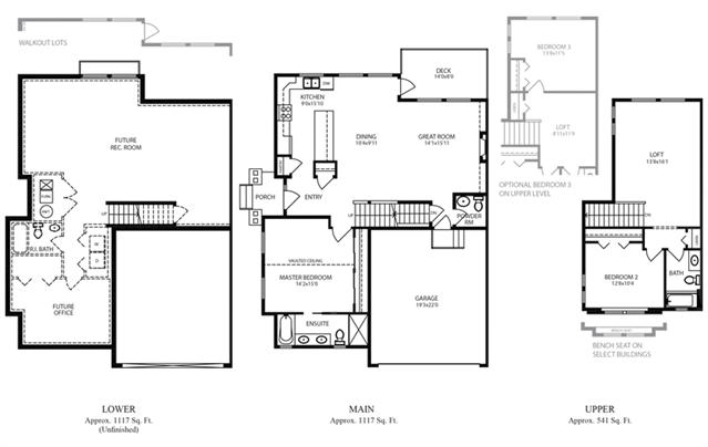
2
2
1
1,658
201 details
unit-banner-image
unit-banner-image
unit-banner-image
201 is now sold.
Check out available communities below.