hero-image-0
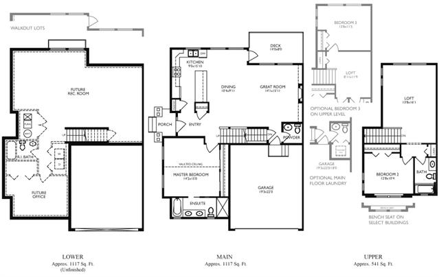
Waterscape at Cooper's Crossin...
Sold
Sold
2
2
1
From 1,658
unit-banner-imageunit-banner-imageunit-banner-image
Willow Plan details
Willow Plan is now sold.
Check out available communities below.