hero-image-0
Waterscape at Cooper's Crossin...
Sold
Sold
3
3
From 1,735
unit-banner-imageunit-banner-imageunit-banner-image
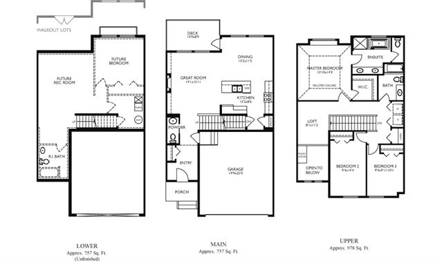
Highgate Plan details
Highgate Plan is now sold.
Check out available nearby plans below.