hero-image-0
hero-image-1

250 Coppersood Green

Vesta Collection at Coopers Cr...
Sold
Sold
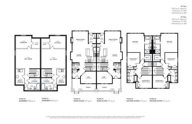
3
2
1
1,694
250 Coppersood Green details
unit-banner-image
unit-banner-image
unit-banner-image
250 Coppersood Green is now sold.
Check out available nearby homes below.