hero-image-0
hero-image-1

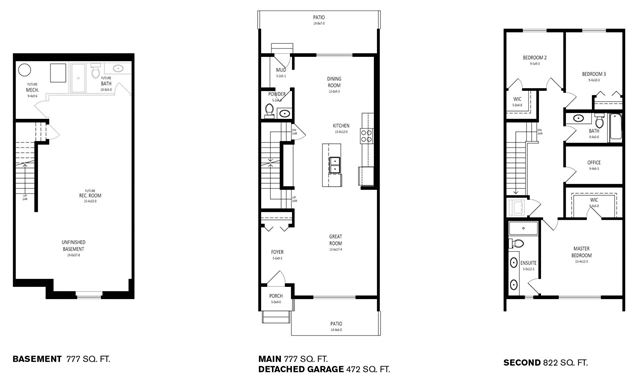
THE CARLTON Plan

Southpoint Rowhomes
Sold
Sold
3
2
1
From 1,599
unit-banner-imageunit-banner-imageunit-banner-image
THE CARLTON Plan details
THE CARLTON Plan is now sold.
Check out available nearby plans below.

Interested? Receive updates

Stay informed with Livabl updates on new community details and available inventory.