hero-image-0

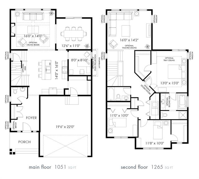
York Plan

Kings Heights
Sold
Sold
3
2
1
From 2,316
unit-banner-imageunit-banner-imageunit-banner-image
York Plan details
York Plan is now sold.
Check out available nearby plans below.