hero-image-0

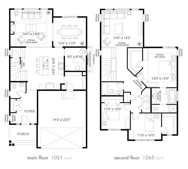
Yale Plan

Kings Heights
Sold
Sold
3
2
From 2,316
unit-banner-imageunit-banner-imageunit-banner-image
Yale Plan details
Yale Plan is now sold.
Check out available nearby plans below.