

Get additional information including price lists and floor plans.


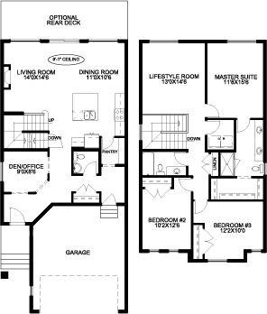
Two storey 3 bedrooms, 2.5 baths Upper floor laundry 9.0’ ceilings main floor Walk-through pantry Main floor den/office Spacious living room at rear of main floor with added fireplace and cantilever Master suite featuring a walk-in closet and ensuite with dual vanity, separate tub and walk-in shower Front foyer closet Upper floor lifestyle room
Stay informed with Livabl updates on new community details and available inventory.