












































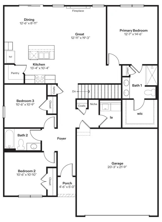
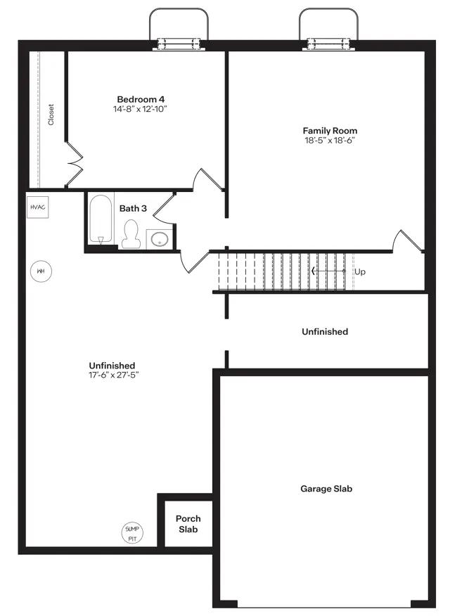
Say hello to the Hamilton Plan by D.R. Horton, located in our Eagle Vista community in Adel, IA. This ranch style floor plan offers 4 bedrooms, 3 full bathrooms, and 2,190 sq. ft. of living space with a finished basement, making it perfect for families seeking a modern, open layout. The Hamilton Plan features two large bedrooms at the front of the home, ideal for guests or children, while the primary suite is at the back for added privacy. The primary includes a walk-in closet and spacious bath with dual vanity sinks and ceramic-tiled walk-in showerperfect for relaxing after a long day. The open-concept living area with 9-ft ceilings is designed for both relaxation and entertaining. The kitchen boasts a large island, subway tile backsplash, and shaker-style cabinetry, making it perfect for cooking, dining, or hosting friends and family. Practicality is key in t...
Stay informed with Livabl updates on new community details and available inventory.