hero-image-0
hero-image-1

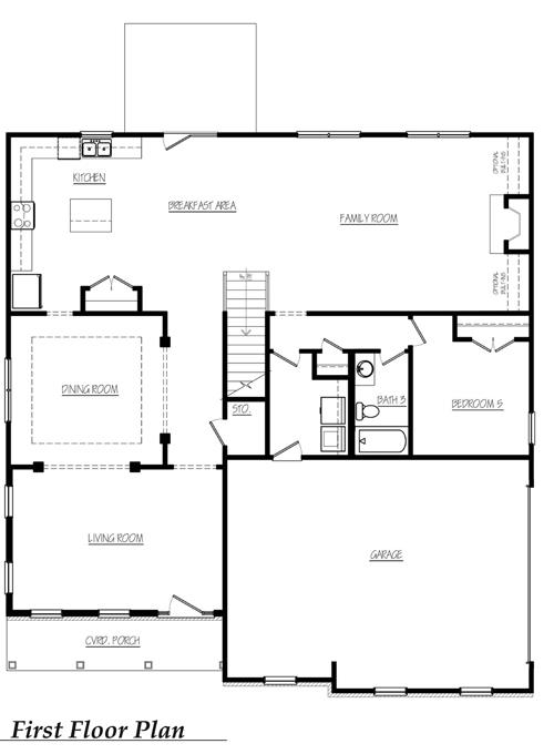
Jean-Lee Plan

Heatherbrooke at Brookstone
Sold
Sold
4
3
1
From 3,667
unit-banner-imageunit-banner-imageunit-banner-image
Jean-Lee Plan details
Jean-Lee Plan is now sold.
Check out available nearby plans below.