hero-image-0
hero-image-1

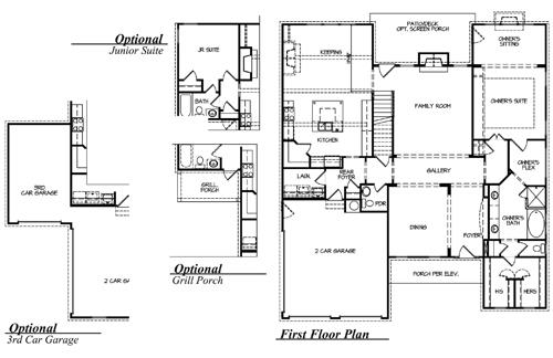
Ashley Plan

Heatherbrooke at Brookstone
Sold
Sold
4
3
1
From 3,138
unit-banner-imageunit-banner-imageunit-banner-image
Ashley Plan details
Ashley Plan is now sold.
Check out available nearby plans below.