New Homes for Sale
Articles
Professionals
Log in
Sign up
Photos 17
Videos 0
Map
Interactive floor plan 0
Virtual 0
Fincastle Plan
By
Toll Brothers
   |  Â
Laurel Ridge - The Glen
Community
Available homes
Get updates
Save
Request info
Request info
Community
Available homes
Request info
Get updates
Save
Request info
Laurel Ridge - The Glen
Get updates
Request info
Sold
Sold
4
3
1
From 3,072
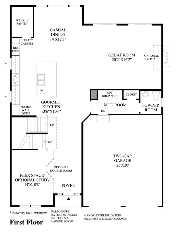
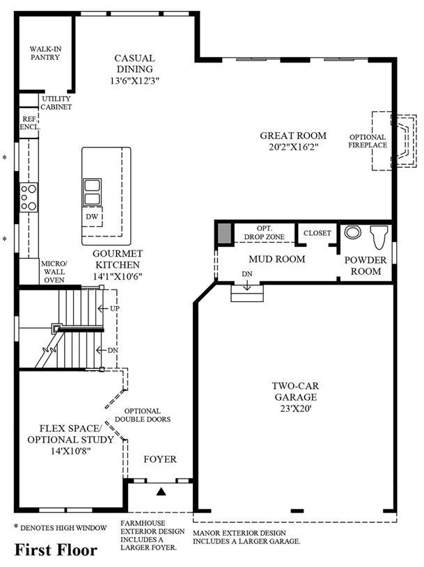
Fincastle Plan details
Address:
Â
Abingdon, MD 21009
Plan type:
Â
Detached Two+ Story
Beds:
Â
4
Full baths:
Â
3
Half baths:
Â
1
SqFt:
Â
From 3,072
Ownership:
Â
Fee simple
Interior size:
Â
From 3,072 SqFt
Lot pricing included:
Â
Yes
Fincastle Plan is now sold.
Check out available nearby plans below.
Similar 4 bedroom plans nearby
view all
Addison
Laurel Oaks
From $688,465
Bynum, Abingdon
Savannah
Laurel Oaks
From $688,605
Bynum, Abingdon
Magnolia
Laurel Oaks
From $698,010
Bynum, Abingdon
Nottingham
Laurel Oaks
From $724,108
Bynum, Abingdon
Hawthorne
Laurel Oaks
From $718,651
Bynum, Abingdon
Augusta
Laurel Oaks
From $699,717
Bynum, Abingdon
Ethan
Laurel Oaks
From $705,884
Bynum, Abingdon
Sebastian
Laurel Oaks
From $689,109
Bynum, Abingdon