hero-image-0
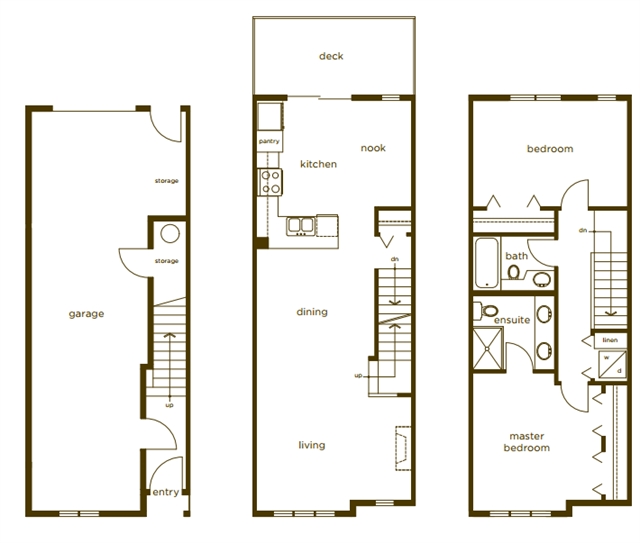
Hartwell at Westerleigh
Sold
Sold
2
From 1,215
unit-banner-imageunit-banner-imageunit-banner-image
Plan B details
Plan B is now sold.
Check out available communities below.