hero-image-0

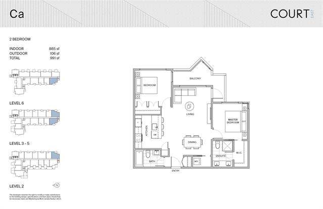
Ca Plan

Court
Sold
Sold
2
2
From 885
unit-banner-imageunit-banner-imageunit-banner-image
Ca Plan details
Ca Plan is now sold.
Check out available nearby plans below.